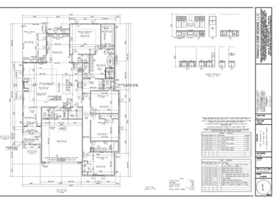
Lot 13 River club Floor Plan

Front elevation of the Lot 5 Kingswood Floor Plan with brick and Hardie plank exterior.

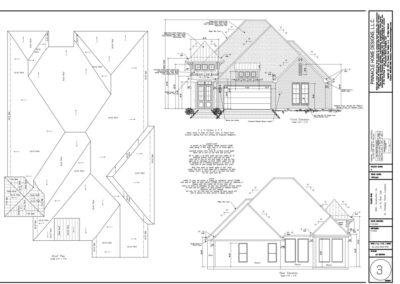
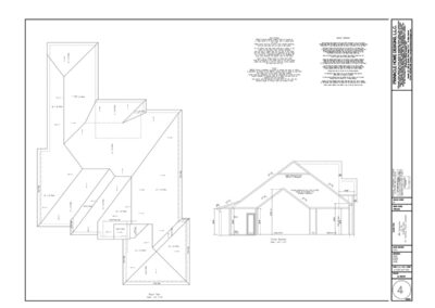
Welcome to Lot 13 River Club, where timeless French Country architecture meets modern convenience. This meticulously designed 2,605 SqFt residence (3,797 SqFt total under roof) offers a sophisticated yet functional layout tailored for comfort and entertaining.

Key Features:

  • Spacious Open Living: The heart of the home features a seamless flow between the grand Family Room, Dining area, and a gourmet Kitchen anchored by a large central island—ideal for gatherings.
  • Private Master Retreat: Tucked away for privacy, the primary suite boasts a luxurious en-suite bath with dual vanities, a soaking tub, separate custom shower, and an expansive walk-in closet.
  • Versatile Accommodations: With 4 bedrooms and 3.5 bathrooms, this plan includes a guest suite with private bath access and two additional bedrooms sharing a well-appointed Jack-and-Jill bath.
  • Functional Extras: Enjoy a dedicated Mudroom/Lockers area off the garage entry (“Friend’s Entrance”), a walk-in pantry, and a large rear porch perfect for outdoor relaxation.
  • Automotive Space: A generously sized 3-car garage ensures ample storage for vehicles and outdoor gear.
    Designed with brick and stucco accents, high hip rooflines, and thoughtful details throughout, Lot 13 River Club represents the pinnacle of custom home design.

SQFT

2,605

Bedrooms

4

Bathrooms

3.5

Garage

2 Car