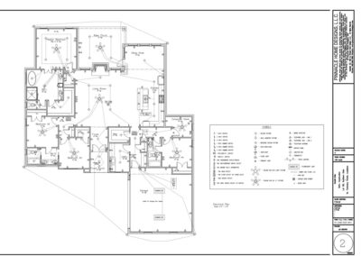
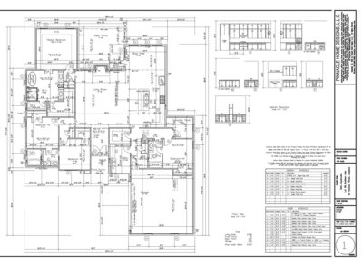
Lot 130 Southern Oaks

This thoughtfully planned home in Southern Oaks offers 2,658 sq. ft. of well-designed living space with a layout that prioritizes comfort, flow, and functionality. Featuring four bedrooms, three full bathrooms, and an inviting open-concept living area, this plan blends everyday practicality with refined style. Highlights include a spacious kitchen with a large island, a private master suite with generous closet space, a computer nook, and a beautifully designed rear porch perfect for outdoor relaxation. With its balanced layout and attention to detail, Lot 130 represents BMI Construction’s commitment to quality craftsmanship throughout the Northshore.
Lot 130 Southern Oaks

SQFT

2,658

Bedrooms

4

Bathrooms

3

Garage

2 car