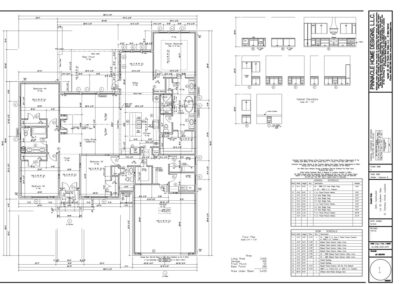
Lot 131 Southern Oaks

This beautifully designed home in Southern Oaks offers 2,615 sq. ft. of thoughtfully planned living space with a layout that blends comfort, function, and timeless style. Featuring four bedrooms and three full bathrooms, the plan includes a spacious open living area, a well-equipped kitchen with a large island, and a dining area positioned for natural flow. The private master suite features a generous bath and walk-in closet, while the additional bedrooms and baths provide flexible space for family and guests. A large rear porch enhances outdoor living, creating the perfect extension of the home’s interior. Lot 131 showcases BMI Construction’s dedication to craftsmanship and elevated design throughout the Northshore.
Lot 131 Southern Oaks

SQFT

2,615

Bedrooms

4

Bathrooms

3

Garage

2 car