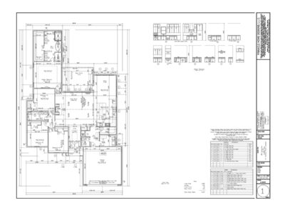
Lot 134 Southern Oaks Floor Plan

Front elevation of the Lot 5 Kingswood Floor Plan with brick and Hardie plank exterior.

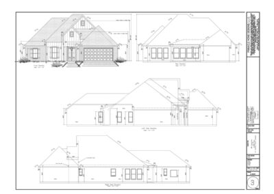
Discover the timeless appeal of the Lot 134 Southern Oaks floor plan, a stunning example of French Country architecture designed for modern living in St. Tammany Parish. With 2,405 square feet of living space, this home balances open entertainment areas with private retreats.

The exterior features a classic brick façade accented by board-and-batten shutters and gas lantern details, offering exceptional curb appeal. Inside, the heart of the home is the expansive Great Room, centered around a fireplace, which flows seamlessly into the gourmet kitchen. The kitchen is equipped with a large center island and a walk-in pantry, adjacent to a bright dining area.

Floor Plan Highlights:

  • 3 Bedrooms, 2.5 Baths: The split floor plan ensures privacy for the luxurious Master Suite, while two guest rooms share a well-appointed hall bath. A convenient powder room serves the main living areas.
  • Outdoor Living: Step out onto the spacious rear porch, designed for year-round enjoyment and outdoor entertaining.
  • Mudroom & Organization: A dedicated “drop zone” with lockers is located off the garage entry, keeping daily clutter organized.
  • 2-Car Garage: The side-entry garage preserves the front elevation aesthetics and includes extra space for storage.

SQFT

2,405

Bedrooms

3

Bathrooms

2.5

Garage

2 Car