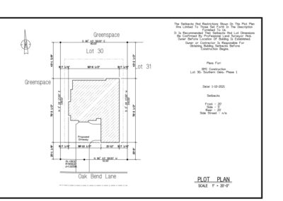
Lot 30 Southern Oaks

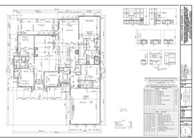
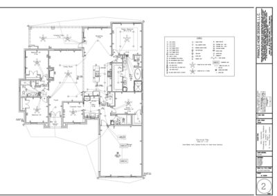
This Southern Oaks floor plan features 2,541 sq ft of thoughtfully designed living space, offering 4 bedrooms and 3 full baths. The open-concept layout connects the family room, dining room, and kitchen, creating an ideal setting for everyday living and entertaining. A spacious covered patio extends the living area outdoors, while a dedicated computer nook, generous storage, and a large 593 sq ft garage add convenience and functionality. The master suite includes a luxurious bath and walk-in closet, and the flexible Study/Bedroom #4 provides additional lifestyle options. With 3,428 sq ft under beam, this home blends comfort, efficiency, and modern design.
Lot 30 Southern Oaks

SQFT

2,541

Bedrooms

4

Bathrooms

3

Garage

2 car