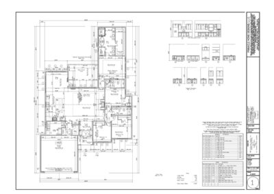
Lot 34 Southern Oaks

This beautifully designed Southern Oaks home offers 2,485 square feet of comfortable, open living space with a thoughtful split-bedroom layout. Featuring four bedrooms plus a dedicated study and three full baths, the plan blends functionality with modern Southern charm. The spacious kitchen, dining, and family room flow seamlessly together and extend onto a large rear porch and covered patio, creating an ideal setting for entertaining or relaxing at home. With generous storage, a 545-sq-ft garage, and 3,322 square feet under beam, this floor plan delivers the quality, space, and livability Southern Oaks is known for.
Lot 34 Southern Oaks

SQFT

2,485

Bedrooms

4

Bathrooms

3

Garage

2 car