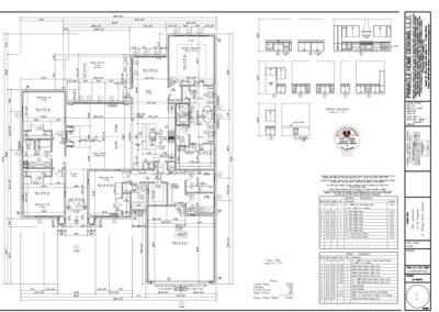
Lot 35 Kingswood

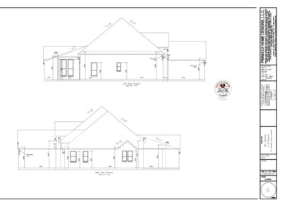
This sophisticated single-story home is designed for refined living in Kingswood—one of Mandeville’s most established and desirable neighborhoods. Featuring a spacious, flowing layout, the plan balances open-concept gathering areas with thoughtfully separated private spaces. The centerpiece of the home is its expansive living room, connecting seamlessly to a gourmet kitchen and large dining area—ideal for entertaining or enjoying quiet evenings at home. A generous primary suite, complete with a spa-inspired bathroom and oversized walk-in closet, offers a peaceful retreat on its own wing. Three additional bedrooms and a dedicated computer room provide flexibility for family, guests, or work-from-home needs. The deep rear porch enhances everyday living with shaded outdoor space framed by Kingswood’s natural beauty. With timeless curb appeal, upscale finishes, and intelligent design, this plan fits beautifully within the wooded elegance of Kingswood.
Lot 35 Kingswood

SQFT

2,629

Bedrooms

4

Bathrooms

3

Garage

2 car