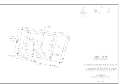
Lot 356 Guste Island

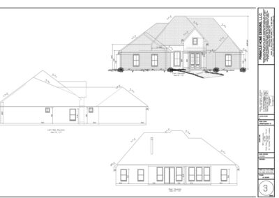
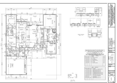
This beautifully crafted single-story home offers a spacious layout designed for relaxed, coastal-inspired living in Guste Island. The heart of the floor plan features an open living room, kitchen, and dining space that creates an inviting, family-friendly flow. A private primary suite anchors one side of the home with a generous bathroom and walk-in closet, while the remaining bedrooms are thoughtfully positioned on the opposite wing for comfort and privacy. A dedicated computer room/flex space adds versatility—perfect for working from home, homework, or hobbies. The large rear porch enhances outdoor living and is ideal for enjoying the serene surroundings of Guste Island. With elegant curb appeal, efficient traffic flow, and meaningful use of every square foot, this plan blends comfort, functionality, and charm for everyday Northshore living.
Lot 356 Guste Island

SQFT

2,283

Bedrooms

4

Bathrooms

3

Garage

2 car