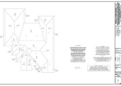
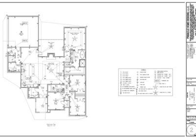
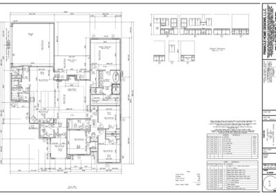
Lot 407 Guste Island

This thoughtfully designed single-story home brings together comfort, functionality, and timeless Southern style—perfectly suited for life in Guste Island. An expansive living room sits at the heart of the layout, flowing naturally into a spacious kitchen and dining area that make hosting and everyday living a pleasure. The private primary suite occupies its own wing, offering a large bedroom, spa-inspired bath, and generous walk-in closet. Three additional bedrooms are positioned along the opposite hallway, providing plenty of space for family, guests, or a dedicated home office. A covered rear porch extends the living space outdoors, giving you a peaceful spot to enjoy Guste Island’s natural beauty. With its balanced layout, abundant storage, and inviting exterior, this plan delivers the best of relaxed Northshore living.
Lot 407 Guste Island

SQFT

2,031

Bedrooms

4

Bathrooms

3

Garage

2 car