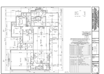
Lot 5 Kingswood Floor Plan

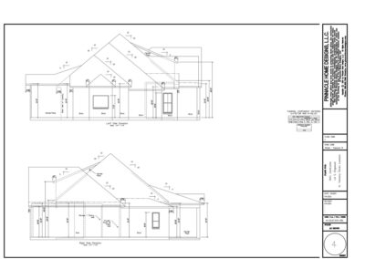
Front elevation of the Lot 5 Kingswood Floor Plan with brick and Hardie plank exterior.

Ready to build your dream home? The Lot 5 Kingswood Floor Plan offers a masterclass in functional luxury, perfectly suited for families looking for space and style. This 2,416 square foot custom layout maximizes every inch of living area, creating an open and inviting atmosphere from the moment you step through the foyer.

At the heart of the home, you will find a spacious living and dining area highlighted by soaring cathedral ceilings. The gourmet kitchen connects seamlessly to the living space, featuring a large island and a convenient walk-in pantry. Just off the main living area, a dedicated computer room provides the perfect workspace or homework station without sacrificing a bedroom.

The private master suite also boasts a cathedral ceiling, ensuring an airy retreat, complete with a spa-like bath featuring a separate soaking tub, custom shower, and dual vanities. Three additional bedrooms share a well-appointed hall bath, while a powder room serves guests near the main living area.

With a 2-car garage and a generous 299 SqFt rear porch for outdoor entertaining, the Lot 5 Kingswood Floor Plan is designed for modern living.

SQFT

2,416

Bedrooms

4

Bathrooms

3

Garage

2 Car