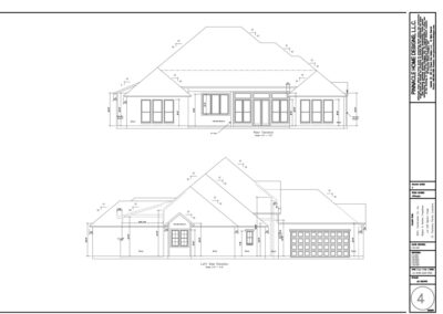
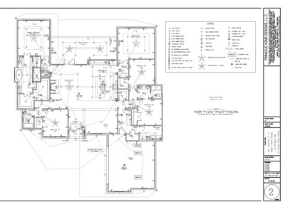
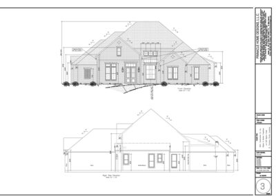
Lot 629

This elegant single-story home offers a spacious and thoughtful layout designed for comfortable everyday living and elevated Southern style. With an open-concept living area, a well-appointed kitchen, and a private primary suite, this plan delivers both function and refinement. Three additional bedrooms, a dedicated game room, and multiple porches provide flexibility for families, entertaining, and relaxed Northshore living. The exterior showcases beautiful architectural detail and a welcoming front elevation that fits perfectly within the Bedico Creek community.
Lot 629

SQFT

3,028

 

Bedrooms

4

Bathrooms

3

Garage

2 car