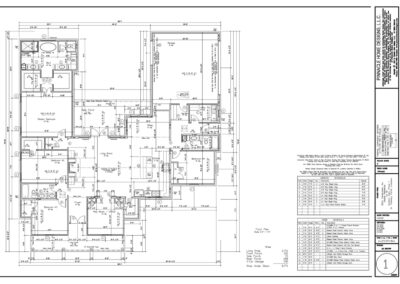
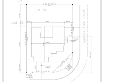
Lot 84 Southern Oaks

This thoughtfully designed home in Southern Oaks showcases a spacious 2,711 sq. ft. layout tailored for comfort, convenience, and modern living. Featuring four bedrooms, a dedicated office, a playroom, and generous open living spaces, the floor plan offers both functionality and luxury for everyday life. With its inviting rear porch, well-planned kitchen, and elegant master suite, this residence reflects BMI Construction’s commitment to craftsmanship and attention to detail. Situated on a premium corner lot, Lot 84 blends beautiful design with the charm of one of Madisonville’s most desirable neighborhoods.
Lot 84 Southern Oaks

SQFT

2,711

Bedrooms

4

Bathrooms

3

Garage

2 car