Lot 857 Bedico Trail

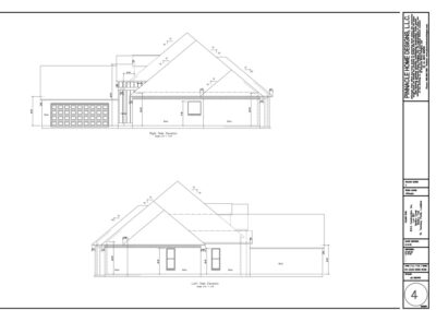
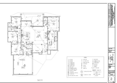
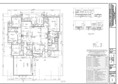
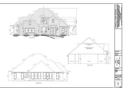
This beautifully designed single-story home offers an open and functional layout ideal for modern living in Bedico Creek. With a spacious family room, well-equipped kitchen, and a dedicated dining area, the plan balances comfort and style throughout. The private master suite is thoughtfully separated from the secondary bedrooms, providing a peaceful retreat, while the additional bedrooms and bathrooms offer plenty of space for family or guests. A large rear porch enhances the home’s outdoor living potential, making it perfect for entertaining or quiet evenings at home. Blending efficiency and charm, this plan fits seamlessly within the natural setting and architectural character of Bedico Creek.

SQFT

2,228

Bedrooms

4

Bathrooms

3

Garage

2 car