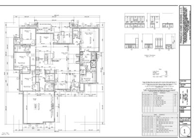
Lot 858 Bedico Trail

This inviting single-story home is designed with comfort, style, and everyday functionality in mind—an ideal fit for the serene Bedico Creek community. The layout centers around a spacious family room that flows effortlessly into the kitchen and breakfast area, creating a warm gathering space for family and guests. With a private master suite tucked away for quiet relaxation and three additional bedrooms on the opposite side of the home, the plan supports both privacy and convenience. A generous rear porch encourages outdoor living, while the dedicated dining room, ample storage, and thoughtfully arranged utility spaces add to the home’s overall efficiency. This plan blends modern livability with timeless architectural character suited perfectly for Northshore living.
858 Bedico Trail

SQFT

2,328

Bedrooms

4

Bathrooms

3

Garage

2 car