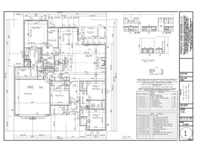
Lot 961 Heron Lake

This thoughtfully designed single-story home blends open living, comfortable private spaces, and refined architectural details—an ideal fit for the Bedico Creek lifestyle. A large living room anchors the center of the plan, connecting seamlessly to the kitchen and dining areas for a warm, inviting flow. The private master suite occupies its own wing, complete with a spacious bathroom and walk-in closet, while the remaining bedrooms sit on the opposite side for added privacy. Bedroom #4 is flexible enough to serve as a study or guest room, giving the home excellent versatility. A generous rear porch enhances outdoor living and offers the perfect spot for relaxing evenings or weekend entertaining. With a balance of charm, comfort, and function, this plan delivers the best of modern Northshore living.
Lot 961 Heron Lake

SQFT

2,266

Bedrooms

4

Bathrooms

3

Garage

2 car